-
-

Купить 4 - комнатную квартиру
(объект № 4-26918)

Объект:
4-х ком.квартира
Адрес:
-
- город:
Одесса
- район:
Приморский р-н
- улица:
Карантинная
Еврейская
-
Этаж/этажей:
2/2
Уровней:
1
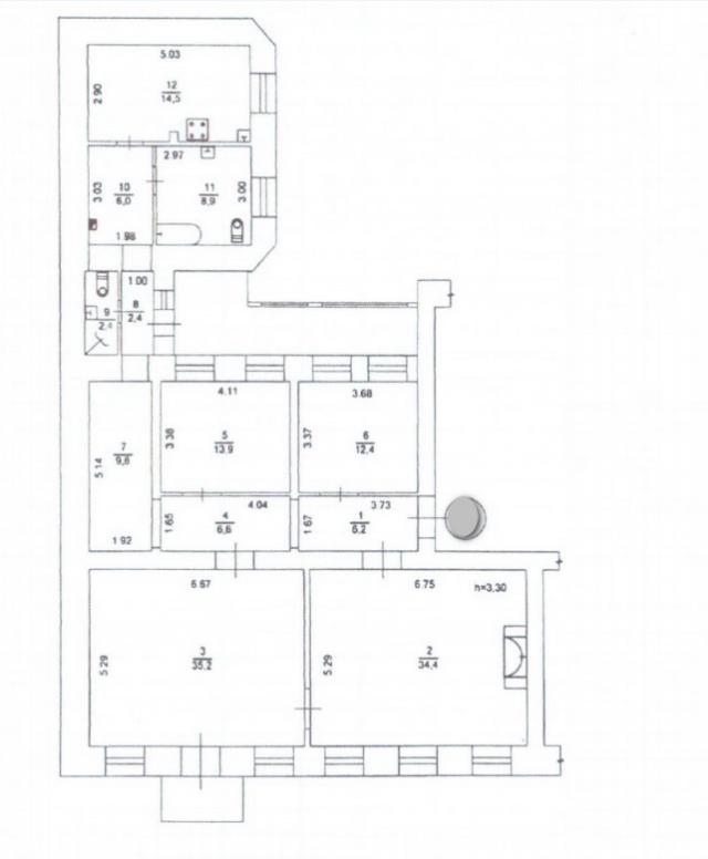
Площадь общая:
160.5 кв.м
Площадь жилая:
96 кв.м
Площадь кухни:
15 кв.м
Высота потолков:
3.5 м
Материал:
Ракушняк
Газ:
есть
Состояние:
После капремонта
150 000 y.e.
Филиал № 4
ул. Троицкая, 35


[email protected]

Агентство недвижимости «Капитал»

предлагает своим клиентам купить


4 комнатную квартиру по адресу - Одесса, Приморский р-н на пересечении улиц – Карантинная и Еврейская, квартира расположена на 2 этаже 2 этажного дома, конструктивный тип дома – ракушняк, общая площадь квартиры – 160.5 кв. метров, жилая площадь – 96 кв. м, площадь кухни – 15 кв. м, высота потолков – 3.5 м
Состояние квартиры – после капремонта

Дополнительна информация: М Квартира находится в двухэтажном флигеле малоквартирного дома. Удобная и функциональная планировка: большая кухня 14,5 кв.м и 4 раздельные комнаты. Два санузла, застекленный балкон и просторный зимний сад. Квартира полностью реконструирована: замененывсе перекрытия сверху и снизу, поменяна крыша (метало-черепица), установлено трехфазное электричество.Отопление - двухконтурный котел.Имеется гидрофор с накопительным баком.Действующий камин.170 кв.м чердака над всей квартирой, с документами

По вопросам осмотра или приобретения этой квартиры обращайтесь в филиал № 4 агентства недвижимости «Капитал» по адресу ул. Троицкая, 35 или по телефонам: 0938730994,0674890733
Агентство Недвижимости «Капитал»
Украина, Одесса,
Люстдорфская дорога 140а
Бизнес-центр «Вузовский»