-
-

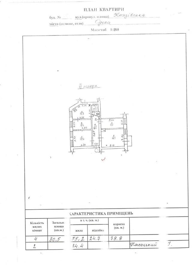
Купить 3 - комнатную квартиру
(объект № 4-26901)

Объект:
3-х ком.квартира
Адрес:
-
- город:
Одесса
- район:
Приморский р-н
- улица:
Княжеская
Новосельского
-
Этаж/этажей:
3/3
Уровней:
1
Площадь общая:
80.5 кв.м
Площадь жилая:
56 кв.м
Площадь кухни:
12.5 кв.м
Высота потолков:
3.6 м
Материал:
Ракушняк
Газ:
есть
Состояние:
Жилое чистое
63 000 y.e.
Филиал № 4
ул. Троицкая, 35


[email protected]

Агентство недвижимости «Капитал»

предлагает своим клиентам купить


3 комнатную квартиру по адресу - Одесса, Приморский р-н на пересечении улиц – Княжеская и Новосельского, квартира расположена на 3 этаже 3 этажного дома, конструктивный тип дома – ракушняк, общая площадь квартиры – 80.5 кв. метров, жилая площадь – 56 кв. м, площадь кухни – 12.5 кв. м, высота потолков – 3.6 м
Состояние квартиры – жилое чистое

Дополнительна информация: Жилое состояние, правильная планировка,АГВ, с/у современная облицовка, балкон

По вопросам осмотра или приобретения этой квартиры обращайтесь в филиал № 4 агентства недвижимости «Капитал» по адресу ул. Троицкая, 35 или по телефонам: 0938730994,0674890733
Агентство Недвижимости «Капитал»
Украина, Одесса,
Люстдорфская дорога 140а
Бизнес-центр «Вузовский»